作者:十三说家居
先不要急着吐槽这个设计师的报价,因为我自己都觉得便宜。
交房之前,我对比了三个设计师的报价:
知乎两万粉丝博主,报价198/平,总价23000;
< style="text-align: left; margin-bottom: 10px;">
本地装修公司(千思),按设计师的等级报价,主任设计师60/平,高级设计师80/平,首席设计师100/平,总价6000-10000;
< style="text-align: left; margin-bottom: 10px;">
朋友熟人装修公司报价,30/平,总价3500。
< style="text-align: left; margin-bottom: 10px;">
3500已经在我预算范围以内了,当时准备定。
结果老婆说她的前同事也是做装修设计的,于是问了下价格,2500,包施工图+效果图+工种进场对接。
好家伙,这就是设计师就业现状?
交房第二天,就联系这个设计师上门量房,当时大致沟通了墙体拆解、无主灯、衣柜摆放、装修流程等,随后付了定金800,设计师开始出方案。
PS:自从出了“承重墙索赔1.6亿”事件后,现在装修前都需要先向物业提交装修方案。
下图是一周内出的设计方案
< style="text-align: left; margin-bottom: 10px;">
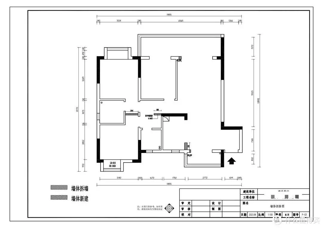
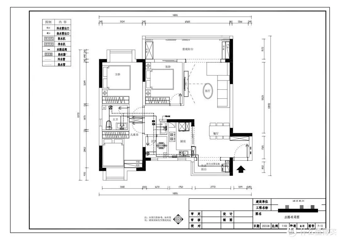
方案通过之后,开始出施工图,包括原始结构图、外框面积图、墙体拆除图、平面布局图、家具尺寸图、地面铺砖图、防水位置图、天化布局图、天花尺寸图、灯具控制图、插座布局图、水路布局图。
< style="text-align: left; margin-bottom: 10px;">

将以上部分必备图上传至物业审核通过后,即可开始施工。
< style="text-align: left; margin-bottom: 10px;">
到这里一切进展都没问题
直到效果图出来!!!
< style="text-align: left; margin-bottom: 10px;">


what?
这不就是纯纯的套模板么?连外景都套进去了!!!
然后我问媳妇的意见,没想到她这么蠢萌的人都说:这模板太明显了,完全不是我们想要的。
然后跟设计师沟通,想跟着自己的想法来配色、配家电、灯具等,他说那种设计图要四五千,因为要专门的收费软件,成本比较高。
后来一想就这样吧,自己不会CAD,方案不会画,无法上传。设计师好歹帮我们画了这么多图,让整个装修流程看起来还是比较顺畅。
实际上在后续装修过程中,没有一样是按照设计师图纸弄的,工种对接也没有再让他去。
墙是自己砸的,保温板是自己铲的,边砸边看邻居们都是砸的哪些地方,铲的哪些地方,觉得不错就照搬。这一步省了约4000块钱。
然后找个了靠谱的水电工,线路走线、开关预留都做得非常好,扫地机器人插座、加湿器插座、飘窗插座、墙排、电视暗埋PVC管等,只要他觉得有必要的都会建议我们做。
现在又找了个靠谱的贴砖师傅,750*1500地砖,报价75一平,在当地来说算小贵,但还是约的这个师傅,只不过师傅太忙,要等一二十天左右。
所以现在处于停工期......
最后给准备自己装修的业主们一个小建议:不管怎么省,靠谱的设计师+靠谱的装修师傅,至少要选中一个,踩坑的几率会小很多~
查看文章精彩评论,请前往什么值得买进行阅读互动