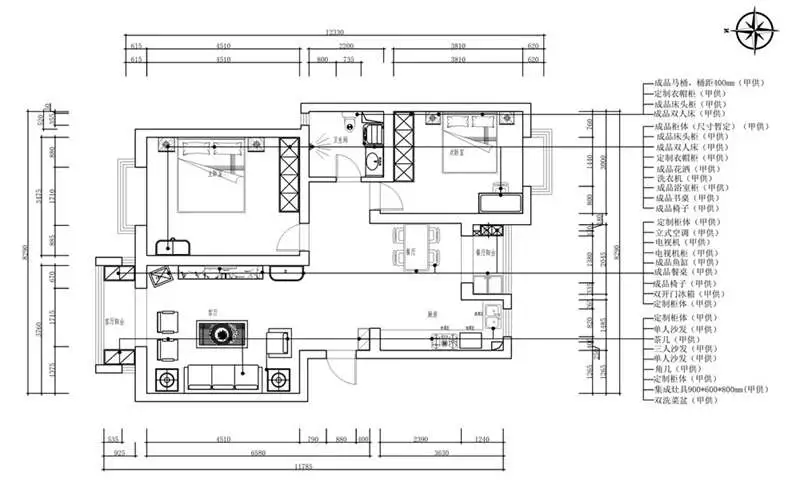
本案为两室两厅一厨一卫105㎡户型,该户型男业主30多岁,是公司职员,要求简洁明快,女业主30多岁,要求储物功能多好打理卫生。他们都喜欢简单的东西,希望能通过颜色来丰富家里的设计内容,此房作为婚房来使用。因此,设计师把风格定义为简约,今天我们就一起来欣赏这套105㎡两居室家庭装修简约风格效果图。
< style="text-align: left; margin-bottom: 10px;"> < style="text-align: left; margin-bottom: 10px;">
一进门的玄关,由于空间比较宽敞,所以在后期的布置上,摆放了玄关柜,设立了上中下功能分区,增加了储物功能,鞋柜底部留有空隙,可以放置一些常用的鞋子,十分方便。
< style="text-align: left; margin-bottom: 10px;"> < style="text-align: left; margin-bottom: 10px;">
由于玄关缺乏采光效果,显得比较暗,给人不太舒服的感觉,而且玄关紧邻厨房,又想做个开放式厨房的设计,所以在后期设计中,把玄关柜旁边的墙体进行拆改,安装玻璃窗,这样一来,厨房的亮光就能照射到玄关,增加玄关的采光效果。
< style="text-align: left; margin-bottom: 10px;"> < style="text-align: left; margin-bottom: 10px;">
客厅影视墙采用对称的手法划分了三个区域,划分区域的造型线采用的是石膏板裁切的平板线叠加的方法,既能吻合设计的简约感也增添了造型上的层次。造型线内的颜色采用了奶咖色,材质用了壁布使设计更细腻。
< style="text-align: left; margin-bottom: 10px;"> < style="text-align: left; margin-bottom: 10px;">
餐厅比较狭窄拆除厨房部分墙体,使餐厅扩大,空间感更强,开放式厨房也同时增加了客餐厅区域的采光,将冰箱挪到餐厅阳台,是为了扩大厨房的使用功能。
< style="text-align: left; margin-bottom: 10px;"> < style="text-align: left; margin-bottom: 10px;">
卫生间运用了灰色的瓷砖,既能从视觉上扩大空间又能与整体色彩搭配,应业主要求洗衣需求比较大,卫生间空间比较小,所以在卫生间预留上下两个洗衣机一个壁挂一个落地,既能节省空间又能符合客户的要求。
< style="text-align: left; margin-bottom: 10px;"> < style="text-align: left; margin-bottom: 10px;">
主卧室的床头为了迎合客户不想太复杂的要求,所以采用不同颜色的壁布来划分区域,床头两边的橙色同时也为空间增加了气氛,床头左右预留了壁灯,使男女主人在以后的使用上各不影响,同时也增加了室内的辅助光源。
< style="text-align: left; margin-bottom: 10px;"> < style="text-align: left; margin-bottom: 10px;">

次卧室在配色上,同样点缀了暖心的黄色,作为孩子的房间,不仅有足够的储物功能,飘窗的设计,更给次卧增添了很多的艺术色彩,尽情享受休闲时光,视觉上感觉活泼自然。
< style="text-align: left; margin-bottom: 10px;"> < style="text-align: left; margin-bottom: 10px;">
