餐饮加盟网-免费发布餐饮招商信息!本站不提供任何加盟资料,如需加盟请去其官网了解详情

装修效果图和装修成品差别有多大?和你想象的一样吗广西一男童天生拥有蓝眼,夜晚看东西如同白天,检查结果让全家沉默

来源:undefined
作者:小吃加盟·发布时间 2025-10-13
核心提示:作者:家装札记装修前大家都希望有一份效果图做参考,一来是可以清晰直观的看到房屋布局情况,其次是与自己预想做对比,看看是否需要修改。那装修效果图和装修成品差别有多

作者:家装札记

装修前大家都希望有一份效果图做参考,一来是可以清晰直观的看到房屋布局情况,其次是与自己预想做对比,看看是否需要修改。那装修效果图和装修成品差别有多大?不妨看看接下来这套装修案例,套内90平的面积,效果图与成品的对比,结果和你想象的一样吗?(图:设计师张有东)

< style="text-align: left; margin-bottom: 10px;">

房屋原始墙体图

< style="text-align: left; margin-bottom: 10px;">

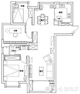
装修平面布置图,改动不是很大,拆除一些非承重墙,合理利用赠送面积,让空间更宽敞实用。

< style="text-align: left; margin-bottom: 10px;"> < style="text-align: left; margin-bottom: 10px;">广告< style="text-align: left; margin-bottom: 10px;">从秘书起步,十年内无人超越,以一己之力力挽狂澜成就一段传奇 < style="text-align: left; margin-bottom: 10px;">×

玄关效果图对比,还原度还是很高的。原有的厨房门洞经过改造,做成了入户鞋柜。边上剩余的空间摆放一面穿衣镜,简洁耐看也很实用。

< style="text-align: left; margin-bottom: 10px;"> < style="text-align: left; margin-bottom: 10px;">

玄关另一侧的转角空间,原计划的斗柜暂时没有购买,但目前的效果貌似也不错,大面积的留白空间,室内更显整洁宽敞。

< style="text-align: left; margin-bottom: 10px;"> < style="text-align: left; margin-bottom: 10px;">

客厅与效果图对比还是有些出入的,效果图里的挂画,业主暂时选择了一幅不买不挂,后期在做打算。

< style="text-align: left; margin-bottom: 10px;"> < style="text-align: left; margin-bottom: 10px;">

电视墙高级灰简约,施工的时候,业主放弃了电视上方的储物结构,同时效果图里的斗柜换成了盆栽绿植,就效果图与实景对比,个人觉得还实景图更好一些。

< style="text-align: left; margin-bottom: 10px;"> < style="text-align: left; margin-bottom: 10px;">

不管怎么装修,居家储物都很重要。入墙式的收纳柜设计美观实用,在拐角的地方挖了一个角,储物不受影响的同时,看也避免了呆板。

< style="text-align: left; margin-bottom: 10px;">

厨房麻雀虽小五脏俱全,良好的收纳空间是厨房必备的。高低台面设计,更符合人体工程学,增加厨房使用幸福感。五金收纳的安装,保证了厨房台面的整洁。

< style="text-align: left; margin-bottom: 10px;"> < style="text-align: left; margin-bottom: 10px;"> < style="text-align: left; margin-bottom: 10px;">

餐厅效果图与实景对比,减少了墙面壁画,空间更加简洁。灰蓝色的墙面,低调优雅很有质感。落地窗与通透的厨房门,让餐厅采光变得更好。餐厅角落的梁柱影响美观,为此做了个吧台设计。

< style="text-align: left; margin-bottom: 10px;"> < style="text-align: left; margin-bottom: 10px;">

卫生间实现了干湿两分离,高峰期更加实用。卫浴内空间紧凑,用浴帘隔断让空间更灵活。

< style="text-align: left; margin-bottom: 10px;"> < style="text-align: left; margin-bottom: 10px;">

主卧效果图与实景对比,背景墙颜色换成了高级灰,在灯光效果下显得尤为突出。全套的白色家具,与空间格调也挺般配的。

< style="text-align: left; margin-bottom: 10px;"> < style="text-align: left; margin-bottom: 10px;">

床尾的斗柜和梳妆台,唯一的遗憾就是空调。空调内机的朝向,让空调安装师傅给搞砸了。窗帘和飘窗部分设计还不错,可作为休闲区。

< style="text-align: left; margin-bottom: 10px;"> < style="text-align: left; margin-bottom: 10px;">

书房效果图与实景图,大面积的收纳柜,木色平板柜门和木框玻璃柜门清爽刚毅,好有线条感。

< style="text-align: left; margin-bottom: 10px;"> < style="text-align: left; margin-bottom: 10px;">

良好的采光是书房不可或缺的,转角窗户加上绿植,让书房变得更有意境。窗帘换成了卷帘,可控度高,不像布艺窗帘那么单一。

标签: sdf
如果您对此项目感兴趣,请在此留言,坐等企业找您(成功的创业者90%都是通过留言,留言只需5秒钟)
  • 知名招商项目汇聚平台

    汇聚海量知名、高诚信度品牌招商项目,随时为您提供招商信息

  • 事实和口碑胜于一切

    千万创业者通过这里找项目、迈出成功创业第一步;

  • 诚信的商机发布平台

    请你在加盟留言时,选择有实力、 加盟店多、成功案例多、合法资质、 证照齐全、诚信经营的品牌.

郑重承诺:本公司郑重承诺尊重你的隐私,并承诺为你保密!
随时 上班时间 下班时间
您可以根据下列意向选择快捷留言
  1. 加盟费多少
  2. 我们这里有加盟店吗?
  3. 我想了解一些加盟资料
  4. 我对这个项目感兴趣,尽快联系我


创业专题



热门创业项目

精品推荐

餐饮项目分类

联系我们

微信扫一扫
第一时间推送投资小回报快利润高的项目

合作伙伴

我们也在这里

关注微信关注微信

您身边的财富顾问...

扫一下
客户端客户端

iPhone/Android/iPad

去下载
关注微博关注微博

官方微博随时分享...

加关注
手机看hbdrt.cn手机看hbdrt.cn

随时随地找商机...

去看看

温馨提示

  • 1在找餐饮项目的过程中多对比同类项目。
  • 2了解项目时多打电话,进行实地考察。
  • 3投资有风险,请谨慎加盟。
  • 4本网站对投资者的风险概不承担。